Provisionsfrei!
Großzügiges 609 m² Grundstück in attraktiver Wohnlage
22946 Trittau, Gartenstraße
315.000,00 €
Objektbeschreibung
In der idyllischen Gartenstraße in Trittau überzeugt dieses 609 m² große Grundstück mit Entwicklungspotenzial vor allem durch seine hervorragende Lage und das weitläufige Platzangebot. Eingebettet in ein ruhiges, gewachsenes Wohngebiet, bietet es einen großzügigen Garten mit sonniger Terrasse sowie einen pflegeleichten Vorgarten – perfekt für Familien, Gartenliebhaber oder Bauherren, die ihre individuellen Wohnträume verwirklichen möchten.
Kindergarten, Schulen und Einkaufsmöglichkeiten befinden sich in unmittelbarer Nähe, sodass kurze Wege im Alltag garantiert sind.
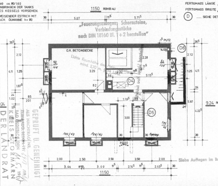
Auf dem Grundstück steht derzeit ein freistehendes Einfamilienhaus (OKAL-Fertighaus, Baujahr 1967) inkl. Einliegerwohnung in vorgeklinkerter Holzständerbauweise. Das Haus ist voll unterkellert, der Keller verfügt über einen separaten Außenzugang. Eine angebaute Garage mit direktem Zugang zum Garten ist ebenfalls vorhanden.
Das Gebäude weist einen erheblichen Instandhaltungsrückstand sowie einen aktuellen Wasserschaden auf und ist daher entweder abbruchreif oder ein Objekt für erfahrene Handwerker. Der bestehende Grundriss lässt sich aufgrund der Bauweise flexibel anpassen.
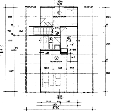
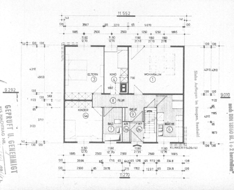
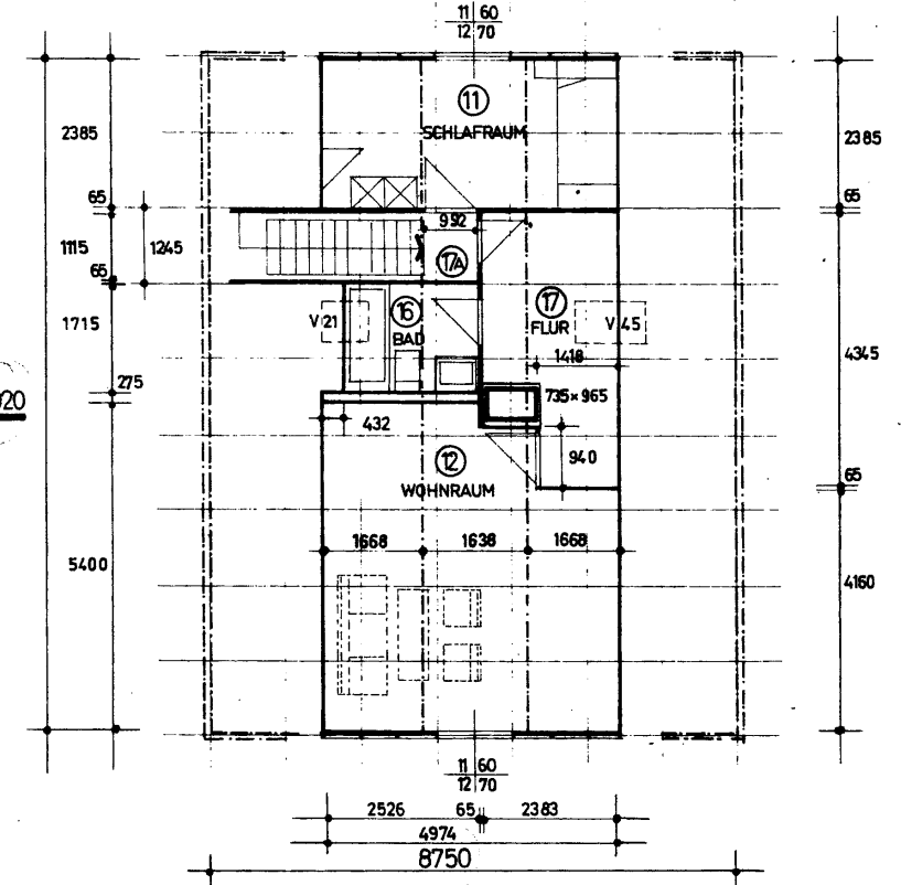
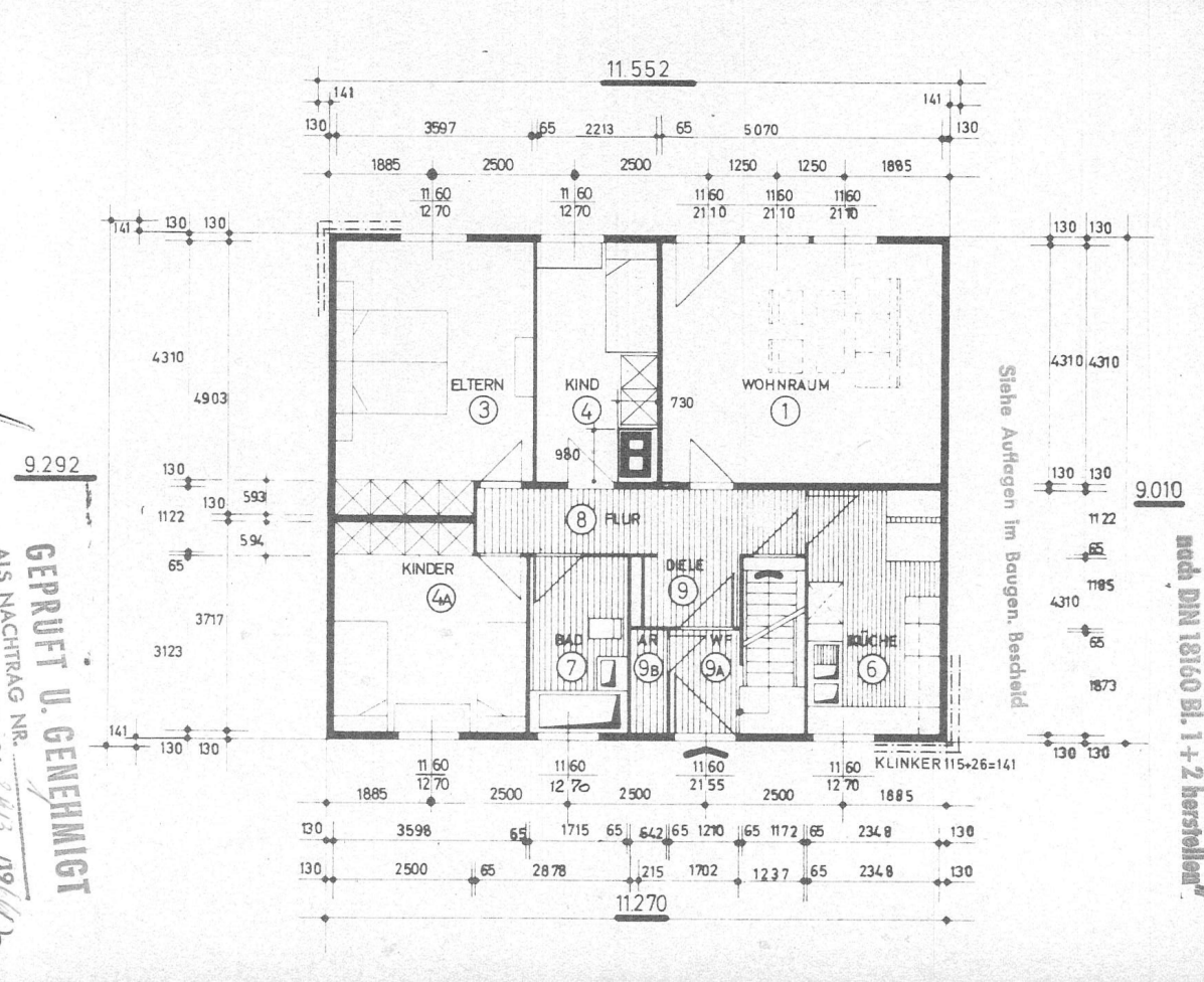
Die derzeitige Raumaufteilung umfasst im Erdgeschoss 3,5 Zimmer, ein Vollbad, ein Gäste-WC und eine Küche. Das Ende der 1970er Jahre ausgebaute Obergeschoss bietet eine kleine 2-Zimmer Einliegerwohnung mit zwei Zimmern, Bad und Pantry.
Zur Ausstattung gehören zweifach verglaste Fenster mit Außenrollläden sowie eine Öl-Zentralheizung mit Warmwasserspeicher (Baujahr 2009).
Dieses schön geschnittene Grundstück mit rund 609 m² Fläche bietet Ihnen beste Voraussetzungen, um Ihren Traum vom individuellen Eigenheim oder ggf. auch Doppelhaus zu verwirklichen – ob klassisches Einfamilienhaus oder modernes Bauprojekt mit Erweiterungspotenzial.
Laut Bebauungsplan ist eine Geschossflächenzahl (GFZ) von 0,4 vorgesehen. Das bedeutet: Es kann ein größeres Gebäude als das bisherige Objekt errichtet werden – ideal für alle, die mehr Platz oder moderne Architektur wünschen.
Es ist eine 1-geschossige Bauweise vorgesehen, wobei auch 1,5 Geschosse zulässig sind – also beispielsweise ein ausgebautes Dachgeschoss. In der äußeren Gestaltung Ihres Hauses sind Sie ansonsten völlig frei – ob klassisch, modern oder individuell.
Galerie
Grundrisse
Lage
Dieses Grundstück in der Gartenstraße überzeugt durch seine erstklassige Lage in einem ruhigen Wohngebiet von Trittau. Familienfreundlichkeit wird hier großgeschrieben: Kindergarten, Grundschule und Gymnasium befinden sich nur wenige Gehminuten entfernt. Die Bushaltestelle Stettiner Straße (Linien 264, 333, 369) liegt nur 120 m entfernt und sorgt für eine hervorragende Anbindung an den öffentlichen Nahverkehr. Einkaufsmöglichkeiten sind bequem zu Fuß erreichbar – der nächste Supermarkt liegt lediglich 600 m entfernt.
Die Umgebung ist geprägt von gepflegten Einfamilienhäusern, Grünflächen und einer ruhigen Nachbarschaft, die zugleich eine gute Infrastruktur bietet. Verschiedene Restaurants in der Nähe sorgen für Abwechslung in der Freizeit.
Trittau selbst ist mit rund 9.100 Einwohnern ein gefragter Wohnort in der Metropolregion Hamburg, landschaftlich reizvoll gelegen und ideal für alle, die eine perfekte Kombination aus Ruhe, Komfort und Nähe zu allen Annehmlichkeiten des täglichen Lebens suchen.
Objektstandort
Gartenstr. 6, Trittau
Kontakt
Telefon: +49 160 94764541
E-Mail: mail@heimundherzimmobilien.de



















